Òbras d'amainatjament deu borg

Preocupada de melhorar lo quadre de vita deus sons abitants, la comuna de BARDÒS qu'a efectuat òbras d'amainatjament e de mesa en accessibilitat PMR deus espacis publics dens lo centre borg en 2019.
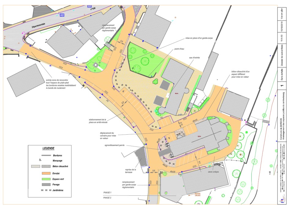
Amainatjament deus espacis publics de la RD 936 a la glèisa

Amainatjament deus espacis publics de la glèisa a la paret a esquèrra


Amainatjament d'un caminament pedanhèr & d'un chaussidou lo long de la rota de Guishe
Dens l'encastre de la soa politica de melhorament de las mobilitats doças e de securizacion de las vias, la comuna de Bardòs, en collaboracion dab lo Conselh Departamentau 64, qu'a efectuat òbras d'amainatjament qui a per mira de crear un caminament pedanhèr e un chaussidou au dret de la RD 253 dita rota de Guishe, enter lo camin de Mondon e la RD 936. Aqueth amainatjament que s'inscriu dens ua desmarcha de desvolopament duradís, en coheréncia dab los objectius de transicion ecologica portats per la municipalitat : reduccion de l'usatge de l'auto, incitacion aus mòdes de desplaçament doç e valorizacion deu quadre de vita.
Qué un chaussidou ?
Lo chaussidou (o cauçada a via centrau banalizada) qu'ei ua cauçada estreta, dab ua via centrau partatjada enter los veïcules motorizats dens los dus sens, e dus acotaders revestits de cada costat entaus ciclistas. Qu'ei un amainatjament simple, eficaç e reconegut entà la soa capacitat a coabitar mélher enter automobilistas e ciclistas, en particular dens las zònas semi-urbanas o ruraus.
Com circular sus un chaussidou ?
Entaus automobilistas :
- La via centrau qu'ei partatjada peus veïcules circulant dens los dus sens
- En temps normau, los veïcules que ròtlan au centre de la cauçada .
- Quan un veïcule arriba en sens invèrse, cadun que's desplaça momentanèament suus acotaders lateraus, en velhant a non pas geinar los ciclistas.
- Qu'ei defendut de rotlar durablament sus las bendas lateraus (reservadas prioritàriament aus ciclistas).
Entaus ciclistas :
- Las bendas lateraus que son concebudas especificament entà las bicicletas : qu'asseguran un espaci securizat de circulacion .
- Los ciclistas qu'i circulan dens lo lor sens de desplaçament, com sus ua pista ciclabla.
- Las autos que deven respectar la prioritat e la securitat deus ciclistas en cas de crotzament.
Bon a saber :
Lo chaussidou n'ei pas ni ua pista ciclabla, ni ua via separada : qu'ei un amainatjament partatjat .
La vigilància e lo respècte mutuau enter usatgèrs que son essenciaus entà assegurar la securitat de tots.
Ua senhalizacion verticau e orizontau (panèus, marcatges au sòu) que vs'ajudarà a identificar lo chaussidou e a adoptar los bons comportaments.
En parallèla,un caminament pedanhèr securizat qu'ei estat amainatjat lo long de la via entà perméter aus arriberans, passejaires e mainatges, de circular en tota tranquillitat entà s'anar au centre borg, a despart deu trafic automobile.
Amainatjament d'ua pista ciclabla lo long de la rota de Baiona
L'amainatjament en 2025 d'ua pista ciclabla sus la RD 936 dens la partida compresa enter l'alea de Panfilia e l'alimentacion VIVAL, qu'ei vienut respóner au besonh de portar ua solucion rasseguranta e rasseguranta sus un èish màger de desplaçament (6900 veïcules/dia) aus ciclistas, atau com aus pedanhs e corredors, permetent per la medisha escadença de securizar la connexion pedanhèra e ciclista de las residéncias ALDAPA e OYANA au centre borg per la via de Panfilia.
Arrestats de circulacion
Telecargar l'arrestat permanent portant reglamentacion de la circulacion (pdf - 243Ko)